Estimating Software Services
call Mick on 0417 703 857 for any questions
Flashing Fascia Gutter

Flashing - Fascia - Gutter

includes extra to allow for mitre cuts etc

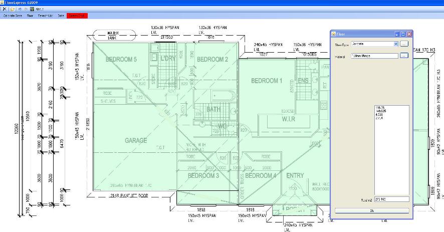
Quick Roof Area Takeoff

Quick Roof Area Takeoff

If you only require total m2 can be completed in seconds

Commercial Soffits

Commercial Soffits

no job too big or too small

Buy TakeoffExpress

ONLY $335.00 per year – no lock in contract

Trial available for $105 GST free. Trial cost is deducted from the yearly licence price if you proceed. Software is delivered electronically after purchase. If you do not have PayPal, call Mick for invoice / EFT options.